
- Tajvan, Čaňa,
Obec: | Nižná Hutka |
---|---|
Okres: | Košice - okolie |
Kraj: | Košický kraj |
Druh: | Domy |
Typ: | Predaj |
Typ domu: | Rodinný dom |
V exkluzívnom zastúpení ponúkame na predaj priestranný dvojpodlažný rodinný dom s veľkým pozemkom v obci Nižná Hutka, len 10 minút autom od Košíc!
Základné informácie:
Užitková plocha domu: 200 m²
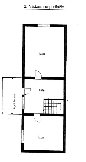
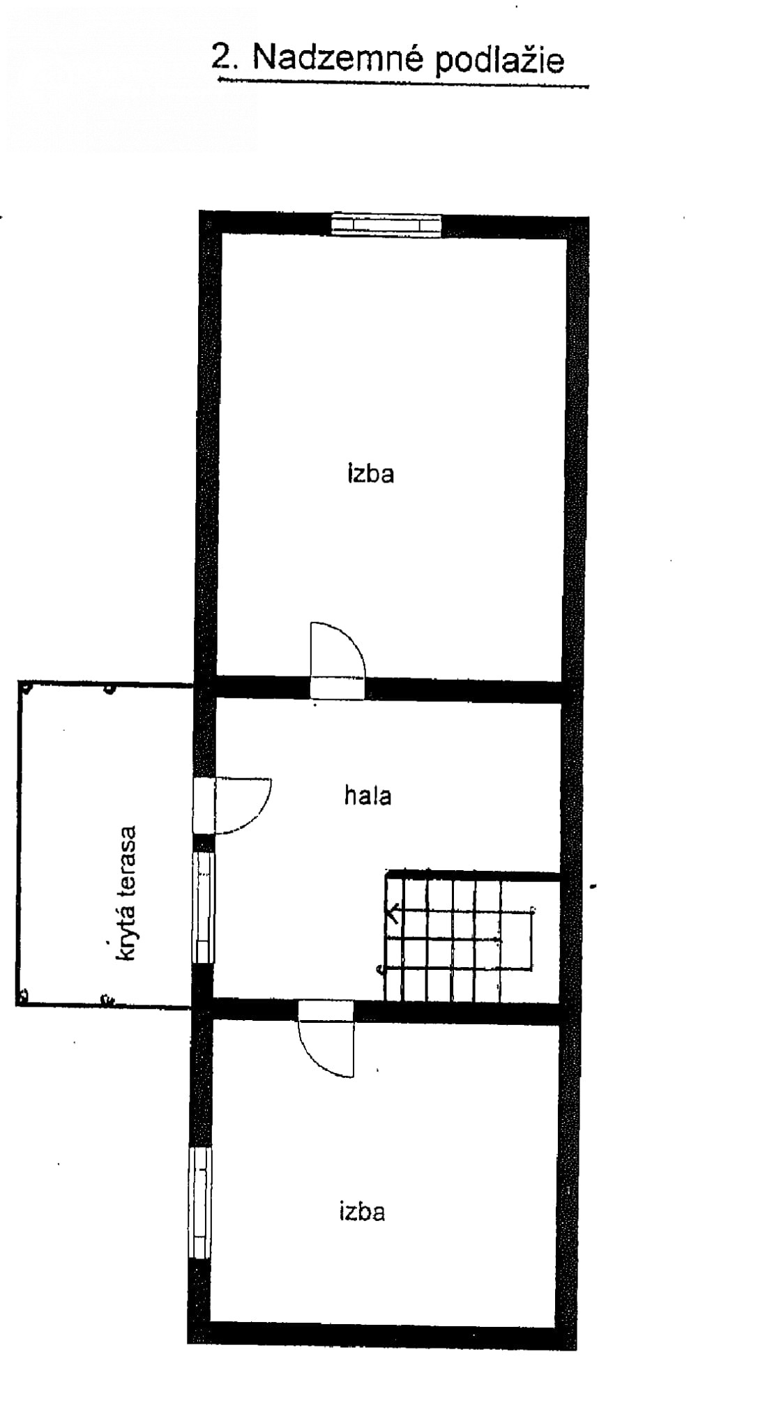
1. podlažie: 116,62 m²
2. podlažie: 83,38 m²
Výmera pozemku: 802 m²
Konštrukcia: kombinácia tehla a kváder
Dispozícia: 3 samostatné nepriechodné izby zo 4, kuchyňa, kotolňa, špajza pri kuchyni, pivnica v kopci, balkón, povala (Zabezpečuje dostatok miesta na odkladanie vecí)
Stav: Po rekonštrukcii – nová fasáda, repasované drevené parkety na poschodí, v niektorých miestnostiach nové omietky, nová brána a bránička
Technické vybavenie a siete:
Plyn, elektrina
Voda zavedená zo studne s výbornou kvalitou, na pozemku aj prípojka na obecnú vodu
Odpady riešené žumpou (10 m³)
Možnosť pripojenia na optický internet
Výhody nehnuteľnosti:
Dom je mimo záplavového územia
Výborná dostupnosť: 10 minút autom do Košíc, 2 minúty na diaľničný obchvat R4
Tichá lokalita plná zelene a prírody
Dom s dušou, ktorý ponúka príjemné bývanie v pokojnom prostredí
Mesačné náklady na prevádzku domu sú len 200 €
Energerický certifikát (pošleme v prípade vážneho záujmu ku nahliadnutiu)
Popis:
Tento priestranný dvojpodlažný rodinný dom postavený z kombinácie tehly a kvádra prešiel rekonštrukciou a je pripravený na okamžité nasťahovanie. K domu patrí veľký pozemok, pivnica v kopci a balkón s výhľadom. Vďaka kvalitným materiálom je ideálny pre rodinu, ktorá hľadá pokojné bývanie v blízkosti mesta, ale zároveň ocení súkromie a prírodu.
Neváhajte ma kontaktovať +421 948 123 010 Bc. Peter Schied - pre viac informácií alebo dohodnutie obhliadky!
Túto nehnuteľnosť je možné financovať aj prostredníctvom hypotekárneho úveru, pomôžeme Vám s jeho vybavením za výhodných podmienok.
Cena nehnuteľnosti je uvedená vrátane provízie pre realitnú kanceláriu, kde je zahrnutý kompletný sprostredkovateľský servis od potrebných obhliadok nehnuteľnosti až k protokolárnemu odovzdaniu, zabezpečenie rezervačných a kúpnych zmlúv cez advokátsku kanceláriu (autorizované aj neautorizované zmluvy), overenie podpisov predávajúcich, štandardný poplatok na kataster (vklad KZ).
Spoluprácou s nami získate:
Exkluzívny prístup aj bez exkluzívnych zmlúv
Profesionálne a férové jednanie
Osobne nabrané ponuky
Komplexné sprostredkovanie predaja/kúpy nehnuteľnosti
Žiadne skryté odmeny
Aktualizácia ponúk a cien
Aktívne riešenie dopytujúcich
Nová služba HOMESTAGING – kosmosreality.sk/home-staging
Maklér pre Košice a okolie, Hypotekárny špecialista