Používame cookies

Súbory cookie a ďalšie technológie sledovania používame na zlepšenie vášho zážitku z prehliadania našich webových stránok, na to, aby sme vám zobrazovali prispôsobený obsah a cielené reklamy, na analýzu návštevnosti našich webových stránok a na pochopenie toho, odkiaľ naši návštevníci prichádzajú. Viac info

 

REZERVOVANÉ - Krásny zrekonštruovaný 3-izbový byt, ul.Marka Čulena, Prešov

Ulica: Marka Čulena
Obec: Prešov
Okres: Prešov
Kraj: Prešovský kraj
Druh: Byty
Typ: Predaj
Typ bytu: 3-izbový byt
179 999 €

Popis nehnuteľnosti

Rezervované.

Ponúkame vám na predaj výnimočný 3-izbový byt s dvoma lodžiami vo vyhľadávanej a pokojnej lokalite Sídliska II na ulici Marka Čulena v Prešove.

Byt sa nachádza na vyvýšenom prízemí (pod bytom sú pivnice) v obytnom bytovom dome a v roku 2025 prešiel kompletnou modernou rekonštrukciou. Predáva sa so všetkým zariadením, presne tak, ako vidíte na fotografiách – stačí sa nasťahovať.

HLAVNÉ PARAMETRE

Výmera podlahovej plochy bytu: 57 m²

2× priestranná lodžia

Vyvýšené prízemie

2 pivnice priamo k bytu

Otočenie na 2 svetové strany (východ a západ) – presvetlený a vzdušný byt

Kompletná rekonštrukcia r. 2025 (elektrina, voda, kúpeľňa, kuchyňa, podlahy, interiéry)

Predaj vrátane kompletného zariadenia

Klimatizácia v obývačke

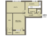
DISPOZÍCIA

vstupná chodba so skriňou s úložným priestorom

kúpeľňa s moderným obkladom a vaňou

samostatné WC

priestranná obývačka so vstupom na lodžiu - prepojenie s jedálenskou časťou

kuchyňa so vstavanými spotrebičmi

spálňa - veľmi priestranná otočená do vnútrobloku

detská izba / pracovňa s druhou lodžiou

VÝHODY BYTU

Kompletná rekonštrukcia – bez ďalších investícií

Pod bytom sú pivničné priestory – byt je teplejší

Dve lodžie poskytujú viac priestoru na oddych

Ideálne poschodie – komfortný prístup aj pre seniorov či rodiny

Predaj v stave „na kľúč“

OKOLIE A OBČIANSKA VYBAVENOSŤ

Ulica Marka Čulena je obľúbená najmä vďaka svojej polohe, no zároveň výbornej dostupnosti:

v blízkosti materské školy, základné školy, ihriská

nákupné možnosti (Lidl v pešej dostupnosti, menšie obchodíky)

zastávky MHD pár minút pešo

parky a zelené plochy na oddych

rýchla dostupnosť do centra Prešova

zdravotné strediská, lekárne, služby

Perfektná lokalita pre rodiny, mladé páry aj ľudí, ktorí hľadajú pokojné bývanie s dobrou dostupnosťou.

CENA NEHNUTEĽNOSTI: 179.999 Eur


Túto nehnuteľnosť je možné financovať aj prostredníctvom hypotekárneho úveru, pomôžeme Vám s jeho vybavením za výhodných podmienok.

Cena nehnuteľnosti je uvedená vrátane provízie pre realitnú kanceláriu, kde je zahrnutý kompletný sprostredkovateľský servis od potrebných obhliadok nehnuteľnosti až k protokolárnemu odovzdaniu, zabezpečenie rezervačných a kúpnych zmlúv cez advokátsku kanceláriu (autorizované aj neautorizované zmluvy), overenie podpisov predávajúcich, štandardný poplatok na kataster (vklad KZ).

Spoluprácou s nami získate:

  • Exkluzívny prístup aj bez exkluzívnych zmlúv
  • Profesionálne a férové jednanie
  • Osobne nabrané ponuky
  • Komplexné sprostredkovanie predaja/kúpy nehnuteľnosti
  • Žiadne skryté odmeny
  • Aktualizácia ponúk a cien
  • Aktívne riešenie dopytujúcich
  • Nová služba HOMESTAGING – kosmosreality.sk/home-staging

Vlastnosti

Status:
aktívne
Vlastníctvo:
osobné
Úžitková plocha:
60 m2
Zastavaná plocha:
60 m2
Podlahová plocha:
57 m2
Stav:
úplne prerobený
Počet izieb:
3
Energetický certifikát:
B
Typ budovy:
panelová stavba
Typ výbavy:
kompletne vybavený
Loggia:
áno
Pivnica:
áno
Rok poslednej rekonštrukcie:
2025
Pozícia:
vyvýšené prízemie
Celková plocha:
60 m2
Plocha loggie:
3 m2
Počet logií:
2
Pivnica plocha:
5 m2
Počet pivníc:
2
Orientácia:
východ
Vykurovanie - centrálne:
áno

Informatívna úverová kalkulačka

Pozrieť na mape

Maklér

Ing. Jana Šrámková

Konateľka spoločnosti, Maklérka pre Košice

Slovensky English
  • rusr

Moja prvá skúsenosť s realitami bola v  roku 2012, kedy ma známy poprosil, či by som našla byt jednému zahraničnému študentovi. Úspešne som prenájom sprocesovala a zistila som, že sa chcem tomu venovať.

V roku 2013 som popri vysokej škole a brigáde začala oficiálne pracovať v nemenovanej realitnej kancelárii . Ako 26-ročná žena som musela pracovať oveľa viac, aby som u klienta vzbudila dôveru a obhájila vtedy krátku skúsenosť v realitách. Prvý mesiac sa mi podarilo zobchodovať 5x viac ako moji kolegovia.

V roku 2017 som otvorila svoju vlastnú realitnú kanceláriu s názvom KOSMOS REALITY. Inšpiráciu na názov som našla v Aténach, kde som rok bývala. Ulica kde som bývala sa volala ,,Neos Kosmos" (Nový svet).

Svojím líderstvom a prácou som inšpirovala ďalších maklérov, ktorí so mnou dodnes pracujú v kancelárii.

Moja vášeň je práca pre zahraničných klientov, majú iné zmýšľanie a vždy dodržia načom sa dohodneme.

Okrem práce ma baví rýchly šport, rodinné výlety, zimné otužovanie, filmy a háčkovanie. Som manželka a mama školáka.

 

Radi Vám poradíme

Podobné nehnuteľnosti