Používame cookies

Súbory cookie a ďalšie technológie sledovania používame na zlepšenie vášho zážitku z prehliadania našich webových stránok, na to, aby sme vám zobrazovali prispôsobený obsah a cielené reklamy, na analýzu návštevnosti našich webových stránok a na pochopenie toho, odkiaľ naši návštevníci prichádzajú. Viac info

 

Na predaj nová rekonštrukcia 3i byt Nešporova s loggiou

Ulica: Nešporova
Obec: Košice-Západ
Okres: Košice II
Kraj: Košický kraj
Druh: Byty
Typ: Predaj
Typ bytu: 3-izbový byt
220 000 €

Popis nehnuteľnosti

Adriána Radzieta a Kosmos Reality Vám ponúkajú na P R E D A J 

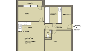
krásny a znovorekonštruovaný 3i byt s loggiou vo výbornej lokalite na ulici Nešporova. Byt sa nachádza na ideálnom 6 poschodí v kompletne zrekonštruovanej bytovke s novým výťahom. Byt je o výmere 58m2 a k bytu prislúcha aj pivnica. Orientácia bytu je: jedna izba, obývačka s kuchyňou je na východnú stranu a spálňa s balkónom na západnú stranu smerom do parku. 

Byt je po novej kompletnej rekonštrukcii s dispozičnými zmenami. Byt je plne vybavený a čiastočne (okrem jednej izby) zariadený. 

V prípade záujmu o obhliadku a o bližšie informácie kontaktujte Adriána Radzieta 0902773773


 

Vlastnosti

Status:
aktívne
Vlastníctvo:
iné
Úžitková plocha:
58 m2
Zastavaná plocha:
58 m2
Podlahová plocha:
58 m2
Stav:
úplne prerobený
Počet izieb:
3
Energetický certifikát:
A
Typ budovy:
panelová stavba
Typ výbavy:
kompletne vybavený
Loggia:
áno
Pivnica:
áno
Poschodie:
6
Celková plocha:
58 m2
Počet logií:
1
Počet pivníc:
1
Inžinierske siete:
áno
Voda:
áno
Elektrika:
áno
Kanalizácia:
áno
Optická sieť:
áno

Informatívna úverová kalkulačka

Pozrieť na mape

Maklér

S realitami som začala v roku 2013 a zamerala som sa hlavne na dosiahnutie maximálnej spokojnosti klienta. Mojou najväčšou odmenou sú klienti, ktorí sa ku mne aj po rokoch vracajú a odporučajú ma aj svojmu okoliu. Za tie roky som si vybudovala meno, vďaka ktorému sa vo veľkej miere venujem exkluzívnym klientom, ktorí si ma žiadajú či už na ich zastúpenie pri predaji alebo kúpe.

Náročnejšie obchody som s odstupom času vzala pozitívne a som vďačná za tie skúsenosti, pretože vďaka nim som sa posunula medzi top maklérov.

Radi Vám poradíme

Podobné nehnuteľnosti