Používame cookies

Súbory cookie a ďalšie technológie sledovania používame na zlepšenie vášho zážitku z prehliadania našich webových stránok, na to, aby sme vám zobrazovali prispôsobený obsah a cielené reklamy, na analýzu návštevnosti našich webových stránok a na pochopenie toho, odkiaľ naši návštevníci prichádzajú. Viac info

 

2,5 i byt, Národná trieda, nová rekonštrukcia, Košice-Sever

Ulica: Národná trieda
Obec: Košice-Sever
Okres: Košice I
Kraj: Košický kraj
Druh: Byty
Typ: Predaj
Typ bytu: 2-izbový byt
Iné:
229 000 €

Popis nehnuteľnosti

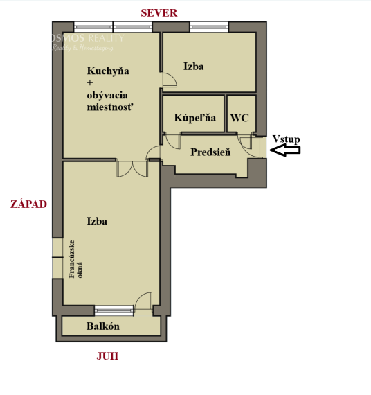
Na predaj 2,5 izbový byt S BALKÓNOM, na ulici Národná Trieda, Košice - Sever.

Kosmos Reality a Ivana Bobaliková Vám ponúkajú na predaj novinku v obľúbenej lokalite s kompletnou občianskou vybavenosťou, v blízkosti centra a zastávky MHD.

Základné informácie o nehnuteľnosti:

  •  1.poschodie
  •  k dispozícii výťah
  •  tehlový bytový dom
  •  zateplený bytový dom
  •  nová neobývaná rekonštrukcia
  •  podlahová výmera bytu 52,9 m2
  •  príslušenstvo k bytu: 1x balkón
  •  orientácia okien na 3 svetové strany: sever, juh a západ

Pôvodne 2- izb. byt prešiel premyslenou rekonštrukciou, vďaka ktorej vznikol praktický 2,5 izb. byt,ideálny pre pár, rodinku, alebo ako investícia na prenájom (vhodné pre študentov veteriny).

Dominantou interiéru je spojenie moderných prvkov s pôvodným charakterom - v jednej izbe boli zachované a kompletne zrenovované drevené parkety, ktoré dodávajú priestoru jedinečnú atmosféru. Výhodou je, že byt je bez plynu, čo prináša vyšší komfort a bezpečnosť.

Rekonštrukcia zahŕňa:

  •  nové vstupné dvere
  •  kuchynská linka na mieru so vstavanými spotrebičmi
  •  nové parkety v 2 izbách
  •  kvalitné materiály a vkusné prevedenie
  •  bonusom je vstavaná chladnička s mrazničkou, umývačka riadu

 

Lokalita patrí medzi vyhľadávané:

  •  Národná trieda, Košice- Sever
  •  rýchla dostupnosť do centra
  •  zastávka MHD v blízkosti
  •  kompletná občianská vybavenosť ( Billa, poliklinika, služby )

Tento byt je ideálnou voľbou pre tých , ktorí hľadajú moderné bývanie bez nutnosti ďalších investícií.

Cena nehnuteľnosti: 229.000 €

V prípade záujmu o obhliadku alebo viac informácii o predmetnej nehnuteľnosti, prosím kontaktujte maklérku Ivana Bobaliková 0948 320 302 alebo e-mailom: bobalikova@kosmosreality.sk


Túto nehnuteľnosť je možné financovať aj prostredníctvom hypotekárného úveru, pomôžeme Vám s jeho vybavením za výhodných podmienok. 

Cena nehnuteľnosti je uvedená vrátane provízie pre realitnú kanceláriu, kde je zahrnutý kompletný sprostredkovateľský servis od potrebných obhliadok nehnuteľnosti až k protokolárnemu odovzdaniu,zabezpečenie rezervačných a kúpnych zmlúv cez advokátsku kanceláriu ( autorizované aj neautorizované zmluvy), overenie podpisov predávajúcich, štandartný poplatok na kataster (vklad KZ).

Spoluprácou s nami získate:

- Exkluzívny prístup aj bez exkluzívnych zmlúv

- Profesionálne a férove jednanie

- Osobne nabrané ponuky

- Komplexné sprostredkovanie predaja/ kúpy nehnuteľnosti

- Žiadne skryté odmeny

- Aktualizácia ponúk a cien

- Aktívne riešenie dopytujúcich

- Nová služba HOMESTAGING - 

  kosmosreality.sk/home-staging

 

 

Vlastnosti

Status:
aktívne
Vlastníctvo:
osobné
Úžitková plocha:
52.9 m2
Zastavaná plocha:
52.9 m2
Stav:
úplne prerobený
Typ budovy:
tehla
Typ výbavy:
nevybavený
Balkón:
áno
Verejné vonkajšie parkovanie:
áno
Výťah:
áno
Rok poslednej rekonštrukcie:
2026
Poschodie:
1
Celková plocha:
52.9 m2
Plocha balkóna:
2 m2
Počet balkónov:
1
Orientácia:
juh
Vykurovanie - centrálne:
áno

Informatívna úverová kalkulačka

Pozrieť na mape

Maklér

Ivana Bobaliková

Maklérka pre Košice a okolie

Slovensky English Deutsch

Radi Vám poradíme

Podobné nehnuteľnosti